ブルーシートで簡易テントをつくる
ブルーシートは、表示されているサイズより小さくできているものです。ホーマックで売っているブルーシートをみてみると、{規格値・(出来上がり値)・生地の強さ・ハトメの数・税込金額}
・3.6m×5.4m(3.5m×5.3m)#3000 20か所 ¥1598
・3.6m×5.4m(3.5m×5.3m)#2700 20か所 ¥1490
・3.6m×5.4m(3.5m×5.3m)#2000 20か所 ¥1058
・2.7m×5.4m(2.5m×5.2m)#3000 18か所 ¥1382
・2.7m×4.5m(2.6m×4.4m)#3000 16か所 ¥1166
・2.7m×3.6m(2.6m×3.5m)#3000 14か所 ¥969
強さ、大きさなどを勘案すると上から二番目のブルーシートが経済的なので、このシートを使って4種類の簡易テントを作ってみる。
モノポール五角錐テント
モノポール五角錐テントは、設計と少々の技術が必要ですが、高さ(2034mm)があり煙抜きも工夫うできるので、火を使うことができ居住性が一番ある。一枚のシートでもそれなりの広さが有るが、より居住性を求めるのであれば、テントに60cmほどの袴をはかせることだ。このテントは、ポールを長めにペグ位置を決めようとしても、うまく五角形にならないので、ポールを短めにして位置を決めるのがコツだ。
どのテントにも共通であるが、テントに取り付けるロープをハトメに固定したいところであるが、都合良い所にハトメがあるわけがなく、また、それほど強いものではない。そこで、ロープを付けたい位置の内側にビー玉(同じ程度の石など)を置いて外側からロープで結ぶことで強く固定できる。
今回のテントは、どれも一本のポール(できれば伸縮できる物)で自立するようになっているので、資材も少なくて済ようになっている。
モノポール四角錐テント
モノポール四角錐テントは、ここで示しているテントの中で、一番合理的で簡単であると思われる。縦横比が4:3が基本であるが、ブルーシートの規格には合っていないんで、長辺4等分、短辺を3等分して考えると簡単に施工できる設計だ。高さも2650mmあり、十分な高さが有る。
モノポール三角錐テント
モノポール三角錐テントは、簡単で三角の頂点高さも2644mmあり、一定程度の居住性を保つことができる。また、一枚のシートで床も覆われているので、敏速に居住性を確保できる。
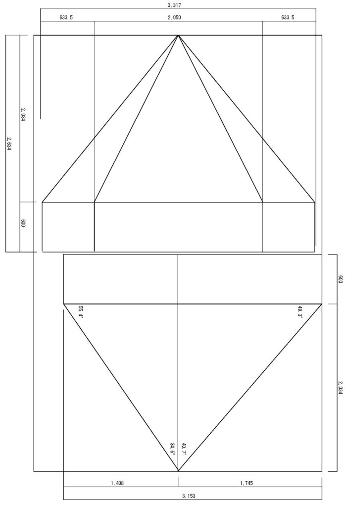
モノポール変形テント
モノポール変形テントは、入口の高さが1750mmあるのだが、奥に行くにしたがって高さがなくなるため、入口の反対側に直接ペグを打つのではなく、500mm程高くすることによって、いくらか居住性の改善ができるが、使いかっては良くない。
テントを立てるのに必要なものは、ブルーシート(3.6m×5.4m)1枚、ビー玉又は同じ程度の石など10個程度、高さに合った伸縮ポール(物干し竿など)1本、荷造りロープ(百均の太さ3.5mm以上)1巻き、ペグ(又はペグの代わりになる石等)10本程度、テントと接するポールの先端にペットボトルかコーヒー缶、マジック、巻き尺、ハサミ程度のものが有れば、どのテントも立てることができる。
ただし、災害が起きて初めて立てるのではなく、家族みんなで楽しみながら事前に立てて見ることが必要だ。なれれば、どのテントも一人で建てることができるので、ガンバってみよう!
モノポール五角錐テント展開図

モノポール五角錐テント立体図

モノポール四角錐テント展開図

モノポール三角錐テント展開図

モノポール変形テント展開図

ブルーシート寝袋
もっともシンプルなキャンディ寝袋を作る。両端をロープで吊ればハンモックにもなる。ブルーシートの両端を寄せあわせ、合せ目をひもでぐるぐる巻いて蝶結びで結ぶ。これに毛布や寝袋があれば十分に野外でも寝られる。

段ボール寝袋


